#075 『好きなもの』全開リノベ(豊田市)
外観はもうすっかり別の家になりました(外構の施工は弊社ではありません)
お客様のご要望
築28年木造2階建て住宅のリノベーション
娘さんご夫婦との同居することになったため2世帯で使いやすくしたい
西側の土地に余裕があるので親世帯のスペース増築を検討
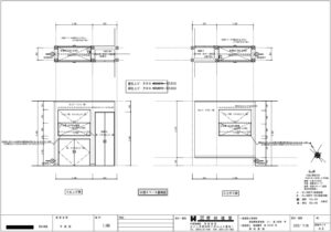
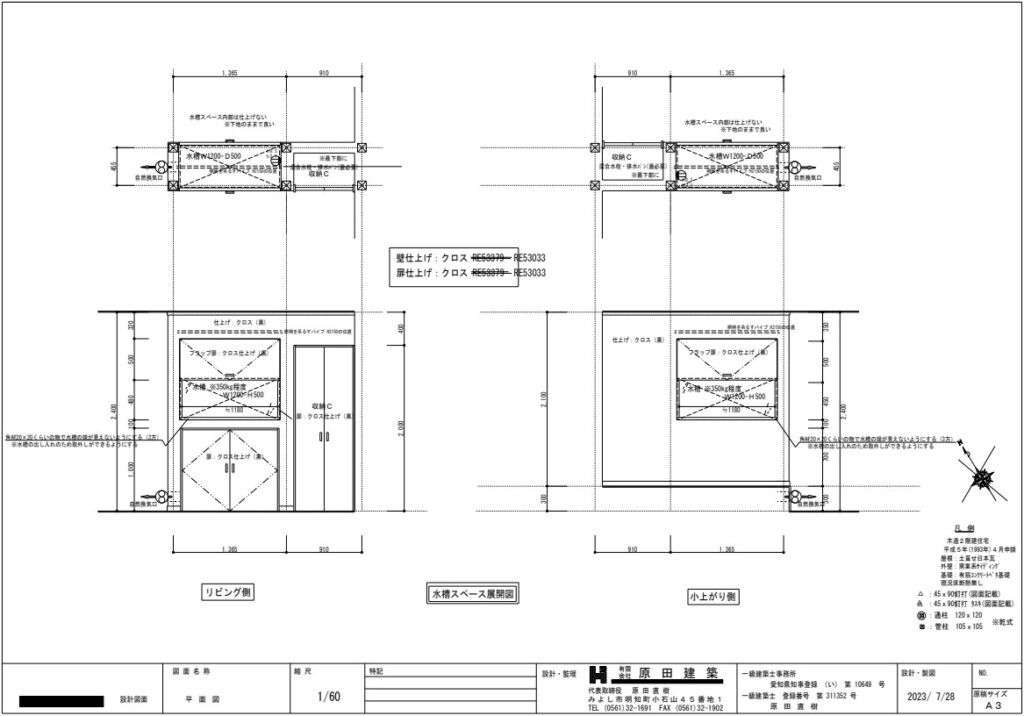
熱帯魚を飼う水槽のスペースをつくりたい
併せて外壁のメンテナンスをしたい
施工ポイント
ご家族みんなが仲が良くて楽しく打合せをする事ができました
特に熱帯魚のスペースは何度も打合せをして満足いくものができました
補助金の申請はしませんでしたが、リノベーション範囲についてはきちんと計算し耐震補強を行いました
物件概要
| 所在地 | 豊田市竹元町 |
|---|---|
| 建物 | 木造2階建て |
| 築年数 | 築43年 |
| 工期 | 約8ヶ月 |
| おおまかな費用 | 2300万円 |
| 工事中の居住状態 | 住みながら |
| 家族構成 | 夫婦2人 リノベーション後に娘さん夫婦2人が同居 |
この施工例についてのご質問はお気軽に!












